• Onlineproperties.com est le site officiel de PropertyPins Real Estate, agence immobilière agréée (n° 1025 - 519/E)

Details Détails Photo Photos Video Vidéo Floor Plan Étage Plan Virtual Tour Visite virtuelle Map Carte Area Information Surface Informations

Whole floor luxurious apartments with service rooms

Nicosia, Engomi
Main Image
For Sale, Nicosia, Engomi
Whole floor luxurious apartments with service rooms
Ventes Prix: From € 435,000 to € 559,000 + V.A.T
Image 1
Image 2
Image 3
Image 4
Voir tout 4 Photos
Details Détails Photo Photos Video Vidéo Floor Plan Étage Plan Virtual Tour Visite virtuelle Map Carte Area Information Surface Informations

For Sale Whole floor luxurious apartments with service rooms in Nicosia, Engomi

This luxurious five storey building offers whole floor three beds apartments, four of them have private independent service rooms. Located in a tranquil and exclusive neighborhood, very close to a tennis club, shops, local amenities, government authorities, embassies, schools and major banks. 
>
>The stylish apartments offers three spacious bedrooms, modern living and dining rooms  and beautiful verandas. With under floor heating, ceramic flooring in verandas and bathrooms, LVT flooring in bedrooms, 
>electric shutters, master bedroom with en suite and walk in wardrobes, spacious storage room, 2 private parking spots per flat, concealed A/V units in the living room.
>Verandas enjoying plenty of sunlight and evening breeze and breathtaking panoramic views of the neighborhood.
>
>The 5th floor apartment has it s own private roof garden, provision of fire place and private service room.

>There are three 3bedrooms apartment with private service room, for sale, with living area of 241sq.m. and asking price of €435.000-€490.000 plus vat .
>The fifth floor apartment with the roof garden is available for sale with total living area 284sq.m. and asking price of €559.000 plus vat.
>
>

Détails supplémentaires

Ventes Prix: From € 435,000 to € 559,000 + VAT
Listing Type: Residential
Property Type: Apartments
Property S/Type: Standard Apartment
Property Status: New
Date Available: 30-05-2026
Living Area: 136m²
Total area: 175m² - 219m²
Veranda/Patio: 39m²
Bedrooms: 3
Maidsroom: 1
WC's: 3
Rooms with EnSuite: 1
Baths: 1
Kitchen Type: Open Plan
Laundry room: No
Extra Storage Space: No
Year Built: 2022
Covered Parking: 2
Pets allowed: Not Applicable
Concierge Reception: No
Total Floors in the Building: 5
Floor the property is on: 1
Title Deeds: Not Applicable

Caractéristiques

Internal
Underfloor heater Underfloor heater
Air Conditioned Air Conditioned
Clothes Cabinet Clothes Cabinet
Granite Counter Tops Granite Counter Tops
Led Lights Led Lights
Laminated Flooring Laminated Flooring
Tiled Flooring Tiled Flooring
Furniture & Appliances
Unfurnished Unfurnished

Apartments
N° d’annonce/Réf. vendeur Chambres Total Surface Ventes Prix
17830/A/201+service room 3 175 m² € 435,000 + V.A.T
17830/B/301+service room 3 175 m² € 460,000 + V.A.T
17830/C/401+service room 3 176 m² € 490,000 + V.A.T
17830/D/501+service room+roof garden 3 219 m² € 559,000 + V.A.T

Des questions ? Demandez-nous à propos de ce bien !

Veuillez remplir ce champ.
Veuillez saisir une adresse e‑mail valide.
Veuillez remplir ce champ.
Veuillez remplir ce champ..
Please check this box to continue.
Please verify that you are not a robot.

Schedule a Visite

Sat 30 May
Sun 31 May
Mon 01 Jun
Tue 02 Jun
Wed 03 Jun
Thu 04 Jun
Fri 05 Jun
Sat 06 Jun
Sun 07 Jun
Mon 08 Jun
Tue 09 Jun
Wed 10 Jun
Thu 11 Jun
Fri 12 Jun
Sat 13 Jun
Sun 14 Jun
Mon 15 Jun
Tue 16 Jun
Wed 17 Jun
Thu 18 Jun
Fri 19 Jun
Sat 20 Jun
Sun 21 Jun
Mon 22 Jun
Tue 23 Jun
Wed 24 Jun
Thu 25 Jun
Fri 26 Jun
Sat 27 Jun
Sun 28 Jun
Mon 29 Jun
Tue 30 Jun
Wed 01 Jul
Thu 02 Jul
Fri 03 Jul
Sat 04 Jul
Sun 05 Jul
Mon 06 Jul
Tue 07 Jul
Wed 08 Jul
Thu 09 Jul
Fri 10 Jul
Sat 11 Jul
Sun 12 Jul
Mon 13 Jul
Tue 14 Jul
Wed 15 Jul
Thu 16 Jul
Fri 17 Jul
Sat 18 Jul
Sun 19 Jul
Mon 20 Jul
Tue 21 Jul
Wed 22 Jul
Thu 23 Jul
Fri 24 Jul
Sat 25 Jul
Sun 26 Jul
Mon 27 Jul
Tue 28 Jul
Wed 29 Jul
Thu 30 Jul
Fri 31 Jul
Sat 01 Aug
Sun 02 Aug
Mon 03 Aug
Tue 04 Aug
Wed 05 Aug
Thu 06 Aug
Fri 07 Aug
Sat 08 Aug
Sun 09 Aug
Mon 10 Aug
Tue 11 Aug
Wed 12 Aug
Thu 13 Aug
Fri 14 Aug
Sat 15 Aug
Sun 16 Aug
Mon 17 Aug
Tue 18 Aug
Wed 19 Aug
Thu 20 Aug
Fri 21 Aug
Sat 22 Aug
Sun 23 Aug
Mon 24 Aug
Tue 25 Aug
Wed 26 Aug
Thu 27 Aug
Fri 28 Aug
Sat 29 Aug
Sun 30 Aug
Mon 31 Aug
Tue 01 Sep
Wed 02 Sep
Thu 03 Sep
Fri 04 Sep
Sat 05 Sep
Sun 06 Sep
Mon 07 Sep
Tue 08 Sep
Wed 09 Sep
Thu 10 Sep
Fri 11 Sep
Sat 12 Sep
Sun 13 Sep
Mon 14 Sep
Tue 15 Sep
Wed 16 Sep
Thu 17 Sep
Fri 18 Sep
Sat 19 Sep
Sun 20 Sep
Mon 21 Sep
Tue 22 Sep
Wed 23 Sep
Thu 24 Sep
Fri 25 Sep
Sat 26 Sep
Sun 27 Sep
Mon 28 Sep
Tue 29 Sep
Wed 30 Sep
Thu 01 Oct
Fri 02 Oct
Sat 03 Oct
Sun 04 Oct
Mon 05 Oct
Tue 06 Oct
Wed 07 Oct
Thu 08 Oct
Fri 09 Oct
Sat 10 Oct
Sun 11 Oct
Mon 12 Oct
Tue 13 Oct
Wed 14 Oct
Thu 15 Oct
Fri 16 Oct
Sat 17 Oct
Sun 18 Oct
Mon 19 Oct
Tue 20 Oct
Wed 21 Oct
Thu 22 Oct
Fri 23 Oct
Sat 24 Oct
Sun 25 Oct
Mon 26 Oct
Tue 27 Oct
Wed 28 Oct
Thu 29 Oct
Fri 30 Oct
Sat 31 Oct
Sun 01 Nov
Mon 02 Nov
Tue 03 Nov
Wed 04 Nov
Thu 05 Nov
Fri 06 Nov
Sat 07 Nov
Sun 08 Nov
Mon 09 Nov
Tue 10 Nov
Wed 11 Nov
Thu 12 Nov
Fri 13 Nov
Sat 14 Nov
Sun 15 Nov
Mon 16 Nov
Tue 17 Nov
Wed 18 Nov
Thu 19 Nov
Fri 20 Nov
Sat 21 Nov
Sun 22 Nov
Mon 23 Nov
Tue 24 Nov
Wed 25 Nov
Thu 26 Nov
Fri 27 Nov
Sat 28 Nov
Sun 29 Nov
Mon 30 Nov
Tue 01 Dec
Wed 02 Dec
Thu 03 Dec
Fri 04 Dec
Sat 05 Dec
Sun 06 Dec
Mon 07 Dec
Tue 08 Dec
Wed 09 Dec
Thu 10 Dec
Fri 11 Dec
Sat 12 Dec
Sun 13 Dec
Mon 14 Dec
Tue 15 Dec
Wed 16 Dec
Thu 17 Dec
Fri 18 Dec
Sat 19 Dec
Sun 20 Dec
Mon 21 Dec
Tue 22 Dec
Wed 23 Dec
Thu 24 Dec
Fri 25 Dec
Sat 26 Dec
Sun 27 Dec
Mon 28 Dec
Tue 29 Dec
Wed 30 Dec
Thu 31 Dec
Fri 01 Jan
Sat 02 Jan
Sun 03 Jan
Mon 04 Jan
Tue 05 Jan
Wed 06 Jan
Thu 07 Jan
Fri 08 Jan
Sat 09 Jan
Sun 10 Jan
Mon 11 Jan
Tue 12 Jan
Wed 13 Jan
Thu 14 Jan
Fri 15 Jan
Sat 16 Jan
Sun 17 Jan
Mon 18 Jan
Tue 19 Jan
Wed 20 Jan
Thu 21 Jan
Fri 22 Jan
Sat 23 Jan
Sun 24 Jan
Mon 25 Jan
Tue 26 Jan
Wed 27 Jan
Thu 28 Jan
Fri 29 Jan
Sat 30 Jan
Sun 31 Jan
Mon 01 Feb
Tue 02 Feb
Wed 03 Feb
Thu 04 Feb
Fri 05 Feb
Sat 06 Feb
Sun 07 Feb
Mon 08 Feb
Tue 09 Feb
Wed 10 Feb
Thu 11 Feb
Fri 12 Feb
Sat 13 Feb
Sun 14 Feb
Mon 15 Feb
Tue 16 Feb
Wed 17 Feb
Thu 18 Feb
Fri 19 Feb
Sat 20 Feb
Sun 21 Feb
Mon 22 Feb
Tue 23 Feb
Wed 24 Feb
Thu 25 Feb
Fri 26 Feb
Sat 27 Feb
Sun 28 Feb
Mon 01 Mar
Tue 02 Mar
Wed 03 Mar
Thu 04 Mar
Fri 05 Mar
Sat 06 Mar
Sun 07 Mar
Mon 08 Mar
Tue 09 Mar
Wed 10 Mar
Thu 11 Mar
Fri 12 Mar
Sat 13 Mar
Sun 14 Mar
Mon 15 Mar
Tue 16 Mar
Wed 17 Mar
Thu 18 Mar
Fri 19 Mar
Sat 20 Mar
Sun 21 Mar
Mon 22 Mar
Tue 23 Mar
Wed 24 Mar
Thu 25 Mar
Fri 26 Mar
Sat 27 Mar
Sun 28 Mar
Mon 29 Mar
Tue 30 Mar
Wed 31 Mar
Thu 01 Apr
Fri 02 Apr
Sat 03 Apr
Sun 04 Apr
Mon 05 Apr
Tue 06 Apr
Wed 07 Apr
Thu 08 Apr
Fri 09 Apr
Sat 10 Apr
Sun 11 Apr
Mon 12 Apr
Tue 13 Apr
Wed 14 Apr
Thu 15 Apr
Fri 16 Apr
Sat 17 Apr
Sun 18 Apr
Mon 19 Apr
Tue 20 Apr
Wed 21 Apr
Thu 22 Apr
Fri 23 Apr
Sat 24 Apr
Sun 25 Apr
Mon 26 Apr
Tue 27 Apr
Wed 28 Apr
Thu 29 Apr
Fri 30 Apr
Sat 01 May
Sun 02 May
Mon 03 May
Tue 04 May
Wed 05 May
Thu 06 May
Fri 07 May
Sat 08 May
Sun 09 May
Mon 10 May
Tue 11 May
Wed 12 May
Thu 13 May
Fri 14 May
Sat 15 May
Sun 16 May
Mon 17 May
Tue 18 May
Wed 19 May
Thu 20 May
Fri 21 May
Sat 22 May
Sun 23 May
Mon 24 May
Tue 25 May
Wed 26 May
Thu 27 May
Fri 28 May
Sat 29 May
En personne
Virtuel
Vos informations

Merci !

Your Visite request has been sent.

One of our agents will Contact you À confirm the appointment.

Veuillez noter : votre visite n’est pas confirmée tant que notre équipe ne vous a pas contacté.

Liens sociaux :

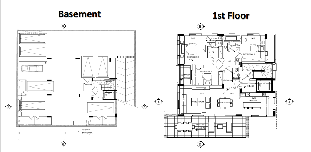
Этаж Планы

×

Floor Plan

Carte

La localisation du bien se trouve dans la zone affichée.

Certificat de performance énergétique

Performance énergie renouvelable :: 0.51
Énergie en kWh/m2a: 0.51
Énergie: B
Α
B
0.51 kWh/m²a Classe énergétique B
Γ
Δ
Ε
Ζ
Η
Greenhouse Gaz emissions kgCO2/m2a 1.00
Greenhouse Gaz emissions A+
A+
1.00 kgCO2/m²a Greenhouse gas emission Classe A+
A
B
C
D
E
F
G

Informations sur la zone

Engomi

Engomi is a suburb and municipality of the Cypriot capital Nicosia.

It is a mainly residential neighbourhood with many large villas. It also includes a very important annexe to the powerful Monastery of Our Lady Eleousa.

Score de marche

Nicosia, Engomi

NOTES
Walk Score 0
Walk Score: indisponible

Les données Walk Score ne sont pas disponibles pour cet emplacement..

Whole floor luxurious apartments with service rooms
Buy

Whole floor luxurious apartments with service rooms

This luxurious five storey building offers whole floor three beds apartments, four of them have private independent service rooms. Located in a tranquil and exclusive neighborhood, very close to a tennis club, shops , local amenities, goverment auth
3
1
175m² - 219m²
2
Minimalistic Design three beds apartments in amazing location
Buy

Minimalistic Design three beds apartments in amazing location

This residential building has only five floors with total 9 apartments of three bedrooms. Each floor consists of two flats  except the fifth floor that is one whole floor apartment.The apartment consists  of  three relaxing bedrooms , with one ens
3
1
126m² - 126.9m²
1
Exclusive living, now down to the last unit.
Buy

Exclusive living, now down to the last unit.

Modern residence in prime Engomi location featuring bright open interiors, energy‑efficient design, premium materials, underfloor heating, concealed A/C, photovoltaic systems, Italian kitchens, and elegant parquet flooring for refined contemporary
3
2
170m² - 182m²
1
Architecture that stands out, comfort that stays
Buy

Architecture that stands out, comfort that stays

Modern urban‑inspired living with spacious interiors, large verandas, premium European finishes, and a striking architectural design. Set in Engomi’s sought‑after Parissinos area, surrounded by greenery and everyday amenities.
3
2
156m²
2
Your family’s next chapter starts here.
Buy

Your family’s next chapter starts here.

Elegant new development in Ayios Andreas, Nicosia with modern design, sustainable features, premium finishes, and advanced amenities, blending heritage charm with contemporary living.
2 - 3
2
115m² - 149m²
1
Final call one final 3-bedroom apartment left!
Buy

Final call one final 3-bedroom apartment left!

Last 3-bedroom apartment in Engomi! Ideal for small family, near European University, schools & facilities. Private parking, storage, easy access to main road & downtown. Rare opportunity!
3
2
143m²
1
Ground floor 280 sq.m. 3bedroom flat
Buy

Ground floor 280 sq.m. 3bedroom flat

€ 2,200 Per month
This stunning three bedroom flat is situated within a modern building and offers beautifully presented interiors throughout, lift access and a superb location. This ground floor apartment contains; lounge/dining area, guest w/c, open plan kitchen with al
3
2
430m²
3
Modern 2- bedroom apartment walking distance to the European University
Buy
Must See

Modern 2- bedroom apartment walking distance to the European University

€ 1,000 Per month
This fully furnished 2-bedroom apartment in Engomi offers a blend of comfort and convenience. Located near the European University, it's perfect for students or professionals seeking easy access to the city center (just 10 minutes away) and nearby am
1
1
100m²
1
Modern building near University of Nicosia
Buy

Modern building near University of Nicosia

Each residence balances luxury city living with elegant design and modern practicality. Created by a visionary architect, the apartments blend comfort for peace of mind, aesthetics that suit your lifestyle, and contemporary tech for clean, efficient
1 - 3
1
61m² - 197m²
2
Well maintained 2 bedroom flat
Buy

Well maintained 2 bedroom flat

€ 700 Per month
• 2 bedrooms• 1 bathroom/WC• 100 m2 + 10 m2 covered balcony• Underground parking space• Underground storage space• Laundry room (can be converted to toilet)• A/C in all rooms• Storage heaters in all rooms• German electrical applianc
2
1
110m²
1
Two bedroom apartment
Buy

Two bedroom apartment

A lovely two bedroom apartment in a very convenient location is available for sale. The apartment consists of a open plan dining and living area , a nice kitchen with plenty of storage, two bright and airy bedrooms and a common bathroom. Covered pa
2
1
90m²
1
Well-Maintained & Ready for Your Personal Touch
Buy

Well-Maintained & Ready for Your Personal Touch

A charming and conveniently located two-bedroom apartment for sale in Engomi, Nicosia. Situated in a prime location, this home features a comfortable living area with an open-plan kitchen, seamlessly connected to a cozy veranda. The apartment include
2
1
84m²
1
A cozy escape made for your comfort.
Buy

A cozy escape made for your comfort.

A cozy one-bedroom apartment in Engomi, Nicosia, ready for you to move in o make your own. It features a comfortable living area, an open-plan kitchen equipped with all essential electrical appliances, and a modern shower. The property also includes
1
1
60m²
1
modern spaces for young professionals
Buy

modern spaces for young professionals

his modern fou-story building features ten spacious apartments, perfect for young families or professionals seeking comfort and convenience. The complex includes six two-bedroom apartments and four three-bedroom apartments. Situated in a quiet reside
1
1
65m² - 66m²
1
Luxurious Exclusive New Development in prime location
Buy

Luxurious Exclusive New Development in prime location

Nestled amidst the tranquil surroundings of one of the best sought after location in Nicosia, this exclusive development  drawing inspiration of from its rich rich history and natural beauty.As a beacon of luxury the development promises to redefine
2 - 3
2
106m² - 138m²
1

Des questions ? Demandez-nous à propos de ce bien !

Veuillez remplir ce champ.
Veuillez saisir une adresse e‑mail valide.
Veuillez remplir ce champ.
Veuillez remplir ce champ..
Please check this box to continue.
Please verify that you are not a robot.

Schedule a Visite

Sat 30 May
Sun 31 May
Mon 01 Jun
Tue 02 Jun
Wed 03 Jun
Thu 04 Jun
Fri 05 Jun
Sat 06 Jun
Sun 07 Jun
Mon 08 Jun
Tue 09 Jun
Wed 10 Jun
Thu 11 Jun
Fri 12 Jun
Sat 13 Jun
Sun 14 Jun
Mon 15 Jun
Tue 16 Jun
Wed 17 Jun
Thu 18 Jun
Fri 19 Jun
Sat 20 Jun
Sun 21 Jun
Mon 22 Jun
Tue 23 Jun
Wed 24 Jun
Thu 25 Jun
Fri 26 Jun
Sat 27 Jun
Sun 28 Jun
Mon 29 Jun
Tue 30 Jun
Wed 01 Jul
Thu 02 Jul
Fri 03 Jul
Sat 04 Jul
Sun 05 Jul
Mon 06 Jul
Tue 07 Jul
Wed 08 Jul
Thu 09 Jul
Fri 10 Jul
Sat 11 Jul
Sun 12 Jul
Mon 13 Jul
Tue 14 Jul
Wed 15 Jul
Thu 16 Jul
Fri 17 Jul
Sat 18 Jul
Sun 19 Jul
Mon 20 Jul
Tue 21 Jul
Wed 22 Jul
Thu 23 Jul
Fri 24 Jul
Sat 25 Jul
Sun 26 Jul
Mon 27 Jul
Tue 28 Jul
Wed 29 Jul
Thu 30 Jul
Fri 31 Jul
Sat 01 Aug
Sun 02 Aug
Mon 03 Aug
Tue 04 Aug
Wed 05 Aug
Thu 06 Aug
Fri 07 Aug
Sat 08 Aug
Sun 09 Aug
Mon 10 Aug
Tue 11 Aug
Wed 12 Aug
Thu 13 Aug
Fri 14 Aug
Sat 15 Aug
Sun 16 Aug
Mon 17 Aug
Tue 18 Aug
Wed 19 Aug
Thu 20 Aug
Fri 21 Aug
Sat 22 Aug
Sun 23 Aug
Mon 24 Aug
Tue 25 Aug
Wed 26 Aug
Thu 27 Aug
Fri 28 Aug
Sat 29 Aug
Sun 30 Aug
Mon 31 Aug
Tue 01 Sep
Wed 02 Sep
Thu 03 Sep
Fri 04 Sep
Sat 05 Sep
Sun 06 Sep
Mon 07 Sep
Tue 08 Sep
Wed 09 Sep
Thu 10 Sep
Fri 11 Sep
Sat 12 Sep
Sun 13 Sep
Mon 14 Sep
Tue 15 Sep
Wed 16 Sep
Thu 17 Sep
Fri 18 Sep
Sat 19 Sep
Sun 20 Sep
Mon 21 Sep
Tue 22 Sep
Wed 23 Sep
Thu 24 Sep
Fri 25 Sep
Sat 26 Sep
Sun 27 Sep
Mon 28 Sep
Tue 29 Sep
Wed 30 Sep
Thu 01 Oct
Fri 02 Oct
Sat 03 Oct
Sun 04 Oct
Mon 05 Oct
Tue 06 Oct
Wed 07 Oct
Thu 08 Oct
Fri 09 Oct
Sat 10 Oct
Sun 11 Oct
Mon 12 Oct
Tue 13 Oct
Wed 14 Oct
Thu 15 Oct
Fri 16 Oct
Sat 17 Oct
Sun 18 Oct
Mon 19 Oct
Tue 20 Oct
Wed 21 Oct
Thu 22 Oct
Fri 23 Oct
Sat 24 Oct
Sun 25 Oct
Mon 26 Oct
Tue 27 Oct
Wed 28 Oct
Thu 29 Oct
Fri 30 Oct
Sat 31 Oct
Sun 01 Nov
Mon 02 Nov
Tue 03 Nov
Wed 04 Nov
Thu 05 Nov
Fri 06 Nov
Sat 07 Nov
Sun 08 Nov
Mon 09 Nov
Tue 10 Nov
Wed 11 Nov
Thu 12 Nov
Fri 13 Nov
Sat 14 Nov
Sun 15 Nov
Mon 16 Nov
Tue 17 Nov
Wed 18 Nov
Thu 19 Nov
Fri 20 Nov
Sat 21 Nov
Sun 22 Nov
Mon 23 Nov
Tue 24 Nov
Wed 25 Nov
Thu 26 Nov
Fri 27 Nov
Sat 28 Nov
Sun 29 Nov
Mon 30 Nov
Tue 01 Dec
Wed 02 Dec
Thu 03 Dec
Fri 04 Dec
Sat 05 Dec
Sun 06 Dec
Mon 07 Dec
Tue 08 Dec
Wed 09 Dec
Thu 10 Dec
Fri 11 Dec
Sat 12 Dec
Sun 13 Dec
Mon 14 Dec
Tue 15 Dec
Wed 16 Dec
Thu 17 Dec
Fri 18 Dec
Sat 19 Dec
Sun 20 Dec
Mon 21 Dec
Tue 22 Dec
Wed 23 Dec
Thu 24 Dec
Fri 25 Dec
Sat 26 Dec
Sun 27 Dec
Mon 28 Dec
Tue 29 Dec
Wed 30 Dec
Thu 31 Dec
Fri 01 Jan
Sat 02 Jan
Sun 03 Jan
Mon 04 Jan
Tue 05 Jan
Wed 06 Jan
Thu 07 Jan
Fri 08 Jan
Sat 09 Jan
Sun 10 Jan
Mon 11 Jan
Tue 12 Jan
Wed 13 Jan
Thu 14 Jan
Fri 15 Jan
Sat 16 Jan
Sun 17 Jan
Mon 18 Jan
Tue 19 Jan
Wed 20 Jan
Thu 21 Jan
Fri 22 Jan
Sat 23 Jan
Sun 24 Jan
Mon 25 Jan
Tue 26 Jan
Wed 27 Jan
Thu 28 Jan
Fri 29 Jan
Sat 30 Jan
Sun 31 Jan
Mon 01 Feb
Tue 02 Feb
Wed 03 Feb
Thu 04 Feb
Fri 05 Feb
Sat 06 Feb
Sun 07 Feb
Mon 08 Feb
Tue 09 Feb
Wed 10 Feb
Thu 11 Feb
Fri 12 Feb
Sat 13 Feb
Sun 14 Feb
Mon 15 Feb
Tue 16 Feb
Wed 17 Feb
Thu 18 Feb
Fri 19 Feb
Sat 20 Feb
Sun 21 Feb
Mon 22 Feb
Tue 23 Feb
Wed 24 Feb
Thu 25 Feb
Fri 26 Feb
Sat 27 Feb
Sun 28 Feb
Mon 01 Mar
Tue 02 Mar
Wed 03 Mar
Thu 04 Mar
Fri 05 Mar
Sat 06 Mar
Sun 07 Mar
Mon 08 Mar
Tue 09 Mar
Wed 10 Mar
Thu 11 Mar
Fri 12 Mar
Sat 13 Mar
Sun 14 Mar
Mon 15 Mar
Tue 16 Mar
Wed 17 Mar
Thu 18 Mar
Fri 19 Mar
Sat 20 Mar
Sun 21 Mar
Mon 22 Mar
Tue 23 Mar
Wed 24 Mar
Thu 25 Mar
Fri 26 Mar
Sat 27 Mar
Sun 28 Mar
Mon 29 Mar
Tue 30 Mar
Wed 31 Mar
Thu 01 Apr
Fri 02 Apr
Sat 03 Apr
Sun 04 Apr
Mon 05 Apr
Tue 06 Apr
Wed 07 Apr
Thu 08 Apr
Fri 09 Apr
Sat 10 Apr
Sun 11 Apr
Mon 12 Apr
Tue 13 Apr
Wed 14 Apr
Thu 15 Apr
Fri 16 Apr
Sat 17 Apr
Sun 18 Apr
Mon 19 Apr
Tue 20 Apr
Wed 21 Apr
Thu 22 Apr
Fri 23 Apr
Sat 24 Apr
Sun 25 Apr
Mon 26 Apr
Tue 27 Apr
Wed 28 Apr
Thu 29 Apr
Fri 30 Apr
Sat 01 May
Sun 02 May
Mon 03 May
Tue 04 May
Wed 05 May
Thu 06 May
Fri 07 May
Sat 08 May
Sun 09 May
Mon 10 May
Tue 11 May
Wed 12 May
Thu 13 May
Fri 14 May
Sat 15 May
Sun 16 May
Mon 17 May
Tue 18 May
Wed 19 May
Thu 20 May
Fri 21 May
Sat 22 May
Sun 23 May
Mon 24 May
Tue 25 May
Wed 26 May
Thu 27 May
Fri 28 May
Sat 29 May
En personne
Virtuel
Vos informations

Merci !

Your Visite request has been sent.

One of our agents will Contact you À confirm the appointment.

Veuillez noter : votre visite n’est pas confirmée tant que notre équipe ne vous a pas contacté.

Liens sociaux :

×

Des questions ? Demandez-nous à propos de ce bien !

Veuillez remplir ce champ.
Veuillez saisir une adresse e‑mail valide.
Veuillez remplir ce champ.
Veuillez remplir ce champ.
Please check this box to continue.
Please verify that you are not a robot.

Schedule a Visite

Sat 30 May
Sun 31 May
Mon 01 Jun
Tue 02 Jun
Wed 03 Jun
Thu 04 Jun
Fri 05 Jun
Sat 06 Jun
Sun 07 Jun
Mon 08 Jun
Tue 09 Jun
Wed 10 Jun
Thu 11 Jun
Fri 12 Jun
Sat 13 Jun
Sun 14 Jun
Mon 15 Jun
Tue 16 Jun
Wed 17 Jun
Thu 18 Jun
Fri 19 Jun
Sat 20 Jun
Sun 21 Jun
Mon 22 Jun
Tue 23 Jun
Wed 24 Jun
Thu 25 Jun
Fri 26 Jun
Sat 27 Jun
Sun 28 Jun
Mon 29 Jun
Tue 30 Jun
Wed 01 Jul
Thu 02 Jul
Fri 03 Jul
Sat 04 Jul
Sun 05 Jul
Mon 06 Jul
Tue 07 Jul
Wed 08 Jul
Thu 09 Jul
Fri 10 Jul
Sat 11 Jul
Sun 12 Jul
Mon 13 Jul
Tue 14 Jul
Wed 15 Jul
Thu 16 Jul
Fri 17 Jul
Sat 18 Jul
Sun 19 Jul
Mon 20 Jul
Tue 21 Jul
Wed 22 Jul
Thu 23 Jul
Fri 24 Jul
Sat 25 Jul
Sun 26 Jul
Mon 27 Jul
Tue 28 Jul
Wed 29 Jul
Thu 30 Jul
Fri 31 Jul
Sat 01 Aug
Sun 02 Aug
Mon 03 Aug
Tue 04 Aug
Wed 05 Aug
Thu 06 Aug
Fri 07 Aug
Sat 08 Aug
Sun 09 Aug
Mon 10 Aug
Tue 11 Aug
Wed 12 Aug
Thu 13 Aug
Fri 14 Aug
Sat 15 Aug
Sun 16 Aug
Mon 17 Aug
Tue 18 Aug
Wed 19 Aug
Thu 20 Aug
Fri 21 Aug
Sat 22 Aug
Sun 23 Aug
Mon 24 Aug
Tue 25 Aug
Wed 26 Aug
Thu 27 Aug
Fri 28 Aug
Sat 29 Aug
Sun 30 Aug
Mon 31 Aug
Tue 01 Sep
Wed 02 Sep
Thu 03 Sep
Fri 04 Sep
Sat 05 Sep
Sun 06 Sep
Mon 07 Sep
Tue 08 Sep
Wed 09 Sep
Thu 10 Sep
Fri 11 Sep
Sat 12 Sep
Sun 13 Sep
Mon 14 Sep
Tue 15 Sep
Wed 16 Sep
Thu 17 Sep
Fri 18 Sep
Sat 19 Sep
Sun 20 Sep
Mon 21 Sep
Tue 22 Sep
Wed 23 Sep
Thu 24 Sep
Fri 25 Sep
Sat 26 Sep
Sun 27 Sep
Mon 28 Sep
Tue 29 Sep
Wed 30 Sep
Thu 01 Oct
Fri 02 Oct
Sat 03 Oct
Sun 04 Oct
Mon 05 Oct
Tue 06 Oct
Wed 07 Oct
Thu 08 Oct
Fri 09 Oct
Sat 10 Oct
Sun 11 Oct
Mon 12 Oct
Tue 13 Oct
Wed 14 Oct
Thu 15 Oct
Fri 16 Oct
Sat 17 Oct
Sun 18 Oct
Mon 19 Oct
Tue 20 Oct
Wed 21 Oct
Thu 22 Oct
Fri 23 Oct
Sat 24 Oct
Sun 25 Oct
Mon 26 Oct
Tue 27 Oct
Wed 28 Oct
Thu 29 Oct
Fri 30 Oct
Sat 31 Oct
Sun 01 Nov
Mon 02 Nov
Tue 03 Nov
Wed 04 Nov
Thu 05 Nov
Fri 06 Nov
Sat 07 Nov
Sun 08 Nov
Mon 09 Nov
Tue 10 Nov
Wed 11 Nov
Thu 12 Nov
Fri 13 Nov
Sat 14 Nov
Sun 15 Nov
Mon 16 Nov
Tue 17 Nov
Wed 18 Nov
Thu 19 Nov
Fri 20 Nov
Sat 21 Nov
Sun 22 Nov
Mon 23 Nov
Tue 24 Nov
Wed 25 Nov
Thu 26 Nov
Fri 27 Nov
Sat 28 Nov
Sun 29 Nov
Mon 30 Nov
Tue 01 Dec
Wed 02 Dec
Thu 03 Dec
Fri 04 Dec
Sat 05 Dec
Sun 06 Dec
Mon 07 Dec
Tue 08 Dec
Wed 09 Dec
Thu 10 Dec
Fri 11 Dec
Sat 12 Dec
Sun 13 Dec
Mon 14 Dec
Tue 15 Dec
Wed 16 Dec
Thu 17 Dec
Fri 18 Dec
Sat 19 Dec
Sun 20 Dec
Mon 21 Dec
Tue 22 Dec
Wed 23 Dec
Thu 24 Dec
Fri 25 Dec
Sat 26 Dec
Sun 27 Dec
Mon 28 Dec
Tue 29 Dec
Wed 30 Dec
Thu 31 Dec
Fri 01 Jan
Sat 02 Jan
Sun 03 Jan
Mon 04 Jan
Tue 05 Jan
Wed 06 Jan
Thu 07 Jan
Fri 08 Jan
Sat 09 Jan
Sun 10 Jan
Mon 11 Jan
Tue 12 Jan
Wed 13 Jan
Thu 14 Jan
Fri 15 Jan
Sat 16 Jan
Sun 17 Jan
Mon 18 Jan
Tue 19 Jan
Wed 20 Jan
Thu 21 Jan
Fri 22 Jan
Sat 23 Jan
Sun 24 Jan
Mon 25 Jan
Tue 26 Jan
Wed 27 Jan
Thu 28 Jan
Fri 29 Jan
Sat 30 Jan
Sun 31 Jan
Mon 01 Feb
Tue 02 Feb
Wed 03 Feb
Thu 04 Feb
Fri 05 Feb
Sat 06 Feb
Sun 07 Feb
Mon 08 Feb
Tue 09 Feb
Wed 10 Feb
Thu 11 Feb
Fri 12 Feb
Sat 13 Feb
Sun 14 Feb
Mon 15 Feb
Tue 16 Feb
Wed 17 Feb
Thu 18 Feb
Fri 19 Feb
Sat 20 Feb
Sun 21 Feb
Mon 22 Feb
Tue 23 Feb
Wed 24 Feb
Thu 25 Feb
Fri 26 Feb
Sat 27 Feb
Sun 28 Feb
Mon 01 Mar
Tue 02 Mar
Wed 03 Mar
Thu 04 Mar
Fri 05 Mar
Sat 06 Mar
Sun 07 Mar
Mon 08 Mar
Tue 09 Mar
Wed 10 Mar
Thu 11 Mar
Fri 12 Mar
Sat 13 Mar
Sun 14 Mar
Mon 15 Mar
Tue 16 Mar
Wed 17 Mar
Thu 18 Mar
Fri 19 Mar
Sat 20 Mar
Sun 21 Mar
Mon 22 Mar
Tue 23 Mar
Wed 24 Mar
Thu 25 Mar
Fri 26 Mar
Sat 27 Mar
Sun 28 Mar
Mon 29 Mar
Tue 30 Mar
Wed 31 Mar
Thu 01 Apr
Fri 02 Apr
Sat 03 Apr
Sun 04 Apr
Mon 05 Apr
Tue 06 Apr
Wed 07 Apr
Thu 08 Apr
Fri 09 Apr
Sat 10 Apr
Sun 11 Apr
Mon 12 Apr
Tue 13 Apr
Wed 14 Apr
Thu 15 Apr
Fri 16 Apr
Sat 17 Apr
Sun 18 Apr
Mon 19 Apr
Tue 20 Apr
Wed 21 Apr
Thu 22 Apr
Fri 23 Apr
Sat 24 Apr
Sun 25 Apr
Mon 26 Apr
Tue 27 Apr
Wed 28 Apr
Thu 29 Apr
Fri 30 Apr
Sat 01 May
Sun 02 May
Mon 03 May
Tue 04 May
Wed 05 May
Thu 06 May
Fri 07 May
Sat 08 May
Sun 09 May
Mon 10 May
Tue 11 May
Wed 12 May
Thu 13 May
Fri 14 May
Sat 15 May
Sun 16 May
Mon 17 May
Tue 18 May
Wed 19 May
Thu 20 May
Fri 21 May
Sat 22 May
Sun 23 May
Mon 24 May
Tue 25 May
Wed 26 May
Thu 27 May
Fri 28 May
Sat 29 May
En personne
Virtuel
Vos informations

Merci !

Your Visite request has been sent.

One of our agents will Contact you À confirm the appointment.

Veuillez noter : votre visite n’est pas confirmée tant que notre équipe ne vous a pas contacté.

×

Schedule a Visite

Sat 30 May
Sun 31 May
Mon 01 Jun
Tue 02 Jun
Wed 03 Jun
Thu 04 Jun
Fri 05 Jun
Sat 06 Jun
Sun 07 Jun
Mon 08 Jun
Tue 09 Jun
Wed 10 Jun
Thu 11 Jun
Fri 12 Jun
Sat 13 Jun
Sun 14 Jun
Mon 15 Jun
Tue 16 Jun
Wed 17 Jun
Thu 18 Jun
Fri 19 Jun
Sat 20 Jun
Sun 21 Jun
Mon 22 Jun
Tue 23 Jun
Wed 24 Jun
Thu 25 Jun
Fri 26 Jun
Sat 27 Jun
Sun 28 Jun
Mon 29 Jun
Tue 30 Jun
Wed 01 Jul
Thu 02 Jul
Fri 03 Jul
Sat 04 Jul
Sun 05 Jul
Mon 06 Jul
Tue 07 Jul
Wed 08 Jul
Thu 09 Jul
Fri 10 Jul
Sat 11 Jul
Sun 12 Jul
Mon 13 Jul
Tue 14 Jul
Wed 15 Jul
Thu 16 Jul
Fri 17 Jul
Sat 18 Jul
Sun 19 Jul
Mon 20 Jul
Tue 21 Jul
Wed 22 Jul
Thu 23 Jul
Fri 24 Jul
Sat 25 Jul
Sun 26 Jul
Mon 27 Jul
Tue 28 Jul
Wed 29 Jul
Thu 30 Jul
Fri 31 Jul
Sat 01 Aug
Sun 02 Aug
Mon 03 Aug
Tue 04 Aug
Wed 05 Aug
Thu 06 Aug
Fri 07 Aug
Sat 08 Aug
Sun 09 Aug
Mon 10 Aug
Tue 11 Aug
Wed 12 Aug
Thu 13 Aug
Fri 14 Aug
Sat 15 Aug
Sun 16 Aug
Mon 17 Aug
Tue 18 Aug
Wed 19 Aug
Thu 20 Aug
Fri 21 Aug
Sat 22 Aug
Sun 23 Aug
Mon 24 Aug
Tue 25 Aug
Wed 26 Aug
Thu 27 Aug
Fri 28 Aug
Sat 29 Aug
Sun 30 Aug
Mon 31 Aug
Tue 01 Sep
Wed 02 Sep
Thu 03 Sep
Fri 04 Sep
Sat 05 Sep
Sun 06 Sep
Mon 07 Sep
Tue 08 Sep
Wed 09 Sep
Thu 10 Sep
Fri 11 Sep
Sat 12 Sep
Sun 13 Sep
Mon 14 Sep
Tue 15 Sep
Wed 16 Sep
Thu 17 Sep
Fri 18 Sep
Sat 19 Sep
Sun 20 Sep
Mon 21 Sep
Tue 22 Sep
Wed 23 Sep
Thu 24 Sep
Fri 25 Sep
Sat 26 Sep
Sun 27 Sep
Mon 28 Sep
Tue 29 Sep
Wed 30 Sep
Thu 01 Oct
Fri 02 Oct
Sat 03 Oct
Sun 04 Oct
Mon 05 Oct
Tue 06 Oct
Wed 07 Oct
Thu 08 Oct
Fri 09 Oct
Sat 10 Oct
Sun 11 Oct
Mon 12 Oct
Tue 13 Oct
Wed 14 Oct
Thu 15 Oct
Fri 16 Oct
Sat 17 Oct
Sun 18 Oct
Mon 19 Oct
Tue 20 Oct
Wed 21 Oct
Thu 22 Oct
Fri 23 Oct
Sat 24 Oct
Sun 25 Oct
Mon 26 Oct
Tue 27 Oct
Wed 28 Oct
Thu 29 Oct
Fri 30 Oct
Sat 31 Oct
Sun 01 Nov
Mon 02 Nov
Tue 03 Nov
Wed 04 Nov
Thu 05 Nov
Fri 06 Nov
Sat 07 Nov
Sun 08 Nov
Mon 09 Nov
Tue 10 Nov
Wed 11 Nov
Thu 12 Nov
Fri 13 Nov
Sat 14 Nov
Sun 15 Nov
Mon 16 Nov
Tue 17 Nov
Wed 18 Nov
Thu 19 Nov
Fri 20 Nov
Sat 21 Nov
Sun 22 Nov
Mon 23 Nov
Tue 24 Nov
Wed 25 Nov
Thu 26 Nov
Fri 27 Nov
Sat 28 Nov
Sun 29 Nov
Mon 30 Nov
Tue 01 Dec
Wed 02 Dec
Thu 03 Dec
Fri 04 Dec
Sat 05 Dec
Sun 06 Dec
Mon 07 Dec
Tue 08 Dec
Wed 09 Dec
Thu 10 Dec
Fri 11 Dec
Sat 12 Dec
Sun 13 Dec
Mon 14 Dec
Tue 15 Dec
Wed 16 Dec
Thu 17 Dec
Fri 18 Dec
Sat 19 Dec
Sun 20 Dec
Mon 21 Dec
Tue 22 Dec
Wed 23 Dec
Thu 24 Dec
Fri 25 Dec
Sat 26 Dec
Sun 27 Dec
Mon 28 Dec
Tue 29 Dec
Wed 30 Dec
Thu 31 Dec
Fri 01 Jan
Sat 02 Jan
Sun 03 Jan
Mon 04 Jan
Tue 05 Jan
Wed 06 Jan
Thu 07 Jan
Fri 08 Jan
Sat 09 Jan
Sun 10 Jan
Mon 11 Jan
Tue 12 Jan
Wed 13 Jan
Thu 14 Jan
Fri 15 Jan
Sat 16 Jan
Sun 17 Jan
Mon 18 Jan
Tue 19 Jan
Wed 20 Jan
Thu 21 Jan
Fri 22 Jan
Sat 23 Jan
Sun 24 Jan
Mon 25 Jan
Tue 26 Jan
Wed 27 Jan
Thu 28 Jan
Fri 29 Jan
Sat 30 Jan
Sun 31 Jan
Mon 01 Feb
Tue 02 Feb
Wed 03 Feb
Thu 04 Feb
Fri 05 Feb
Sat 06 Feb
Sun 07 Feb
Mon 08 Feb
Tue 09 Feb
Wed 10 Feb
Thu 11 Feb
Fri 12 Feb
Sat 13 Feb
Sun 14 Feb
Mon 15 Feb
Tue 16 Feb
Wed 17 Feb
Thu 18 Feb
Fri 19 Feb
Sat 20 Feb
Sun 21 Feb
Mon 22 Feb
Tue 23 Feb
Wed 24 Feb
Thu 25 Feb
Fri 26 Feb
Sat 27 Feb
Sun 28 Feb
Mon 01 Mar
Tue 02 Mar
Wed 03 Mar
Thu 04 Mar
Fri 05 Mar
Sat 06 Mar
Sun 07 Mar
Mon 08 Mar
Tue 09 Mar
Wed 10 Mar
Thu 11 Mar
Fri 12 Mar
Sat 13 Mar
Sun 14 Mar
Mon 15 Mar
Tue 16 Mar
Wed 17 Mar
Thu 18 Mar
Fri 19 Mar
Sat 20 Mar
Sun 21 Mar
Mon 22 Mar
Tue 23 Mar
Wed 24 Mar
Thu 25 Mar
Fri 26 Mar
Sat 27 Mar
Sun 28 Mar
Mon 29 Mar
Tue 30 Mar
Wed 31 Mar
Thu 01 Apr
Fri 02 Apr
Sat 03 Apr
Sun 04 Apr
Mon 05 Apr
Tue 06 Apr
Wed 07 Apr
Thu 08 Apr
Fri 09 Apr
Sat 10 Apr
Sun 11 Apr
Mon 12 Apr
Tue 13 Apr
Wed 14 Apr
Thu 15 Apr
Fri 16 Apr
Sat 17 Apr
Sun 18 Apr
Mon 19 Apr
Tue 20 Apr
Wed 21 Apr
Thu 22 Apr
Fri 23 Apr
Sat 24 Apr
Sun 25 Apr
Mon 26 Apr
Tue 27 Apr
Wed 28 Apr
Thu 29 Apr
Fri 30 Apr
Sat 01 May
Sun 02 May
Mon 03 May
Tue 04 May
Wed 05 May
Thu 06 May
Fri 07 May
Sat 08 May
Sun 09 May
Mon 10 May
Tue 11 May
Wed 12 May
Thu 13 May
Fri 14 May
Sat 15 May
Sun 16 May
Mon 17 May
Tue 18 May
Wed 19 May
Thu 20 May
Fri 21 May
Sat 22 May
Sun 23 May
Mon 24 May
Tue 25 May
Wed 26 May
Thu 27 May
Fri 28 May
Sat 29 May
En personne
Virtuel
Vos informations

Merci !

Your Visite request has been sent.

One of our agents will Contact you À confirm the appointment.

Veuillez noter : votre visite n’est pas confirmée tant que notre équipe ne vous a pas contacté.

Authentication required to view this property AD#19464


Please enter your information below

We will contact you to provide access to the information about this "off" market property listing

Comparer les annonces